

Opis nieruchomości
Do sprzedania NOWE w stanie deweloperskim mieszanie 48.38 m2 na pietrze 1/12trzypokojowe mieszkanie w prestiżowej inwestycji Wieniawa Residence ul.Pagi
WIENIAWA RESIDENCE to kameralne, nowoczesne osiedle w standardzie premium; idealne dla osób, które chcą korzystać z możliwości, jakie daje duże miasto, a jednocześnie mieszkać wygodnie, w ciszy i spokoju.
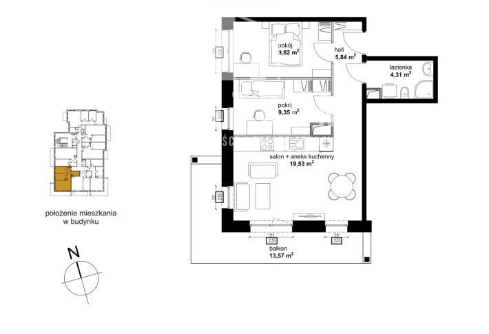
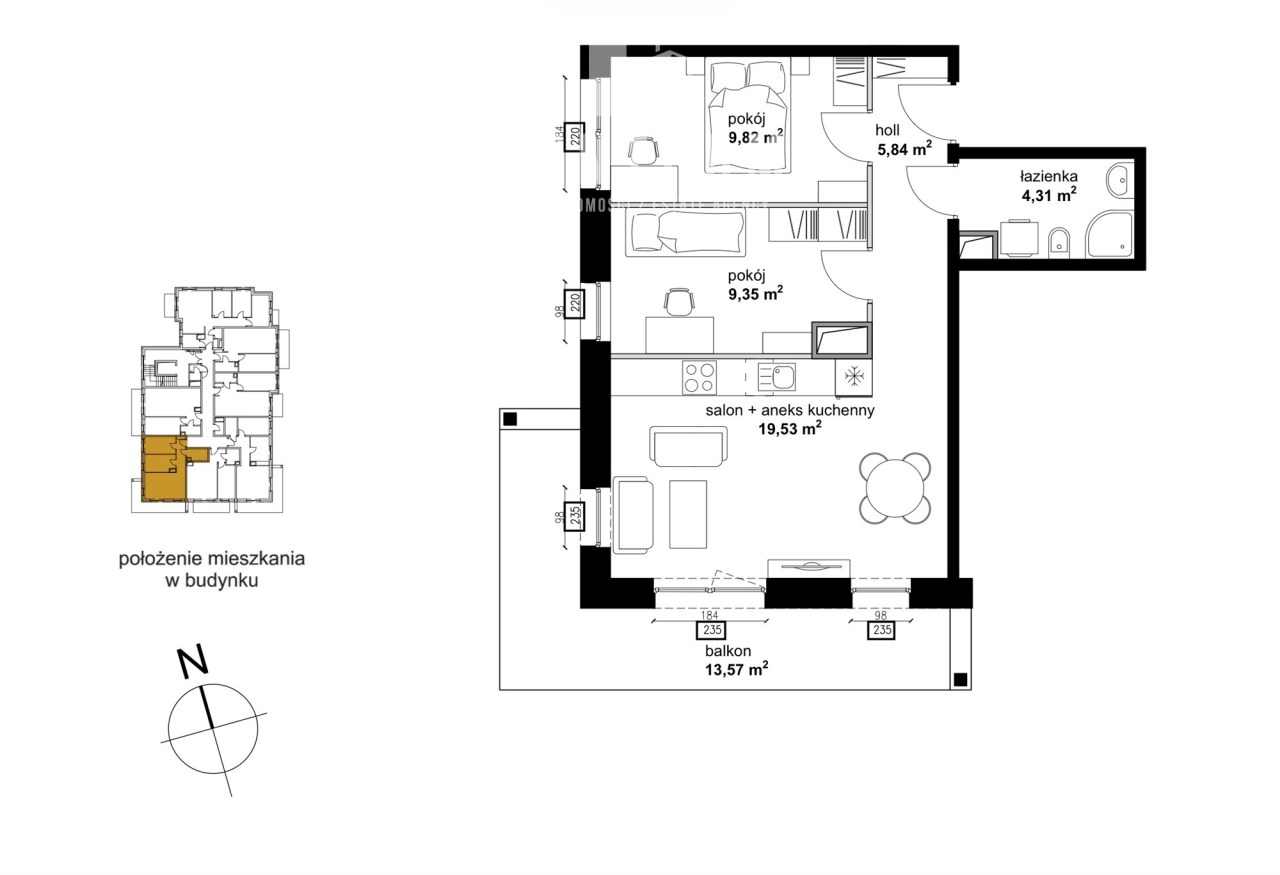
- salon z aneksem 19,53 m2
- pokój 9,35 m2
- pokój 9,82 m2
- holl 5,84 m2
- łazienka 4,31 m2
- balkon 13,57 m2
Mieszkania sprzedawane w stanie deweloperskim, po odbiorze technicznym, przynależy
- komórka lokatorska , na tym samym pietrze 2.18m2
Cena: 680 000 zł
miejsce parkingowe w garażu podziemnym 80 tys zł
komórka lokatorska 20 tys zł
_____
* Szybka i skuteczna pomoc w wynajmie i sprzedaży twojej nieruchomości!
* Tworzymy profesjonalne zdjęcia i opis!
* Wirtualny spacer po nieruchomości!
* Pomagamy w uzyskaniu Kredytu!
| Współpraca z nami to przyjemność |
_____